CAD Beratung & Schulung
Ralf Albrecht Dipl.Ing.(FH)

PTC Creo Elements/Direct Drafting ( ME10 )

Macro Programme

Durch die Macroprogrammierung im Drafting kann dieses 2D CAD Programm sehr leistungsfähig werden.

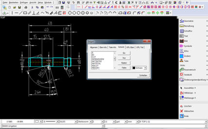
Beispiel 1: Konvertieren in DWG/DXF mit BMG Layer

Creo Elements/Direct Drafting ME10

Beispiel 2: Hotspot Datenfile erstellen

CoCreate Drafting

Beispiel 3: Stückliste für P2plus erstellen

OneSpace Drafting

Beispiel 4: Automatisches erstellen einer Montagezeichnung

Creo Drafting
Im Drafting wird zur Strukturierung der Zeichnung normalerweise die Teilestruktur gewählt. Bei diesem Kunden war die Anforderung, dass die Zeichnungselemente mit dem BMG (Betriebs Mittel Grafik) Layer- und Datenkonzept kompatibel sind und entsprechend im Autocad weiterbearbeitet werden können sollen. Mit Hilfe von Macros wurden eindeutige Elemente automatisch und die anderen halbautomatisch auf die entsprechenden Layer gelegt.  
Für einen Online Ersatzteilkatalog soll eine PNG-Datei der Zeichnung erstellt werden. Die Positionsnummern auf der Zeichnung sollen mit Wert und Koordinaten des Beschriftungsfelds in einer zugehörigen Datei gespeichert werden. Der Programmablauf erfolgt vollautomatisch, sowohl für Bestandsdaten (im Batchbetrieb) als auch im laufenden Betrieb, während dem Speicherprozess in die Datenbank.
Vollautomatisches erstellen einer Montagezeichnung. Es sollen nur der Typ und die Höhen- und Breitenparameter des Produkts eingegeben werden. Die Zeichnungserstellung, mit Befestigungsbohrungen erfolgt auf Knopfdruck in wenigen Sekunden.
Aus der Strukturliste soll eine Stückliste für das ERP-Programm P2plus erstellt werden.
PTC Creo Elements Direct  Schulung / Training
CAD Beratung & Schulung
© Ralf Albrecht
Ralf Albrecht Dipl.Ing.(FH)

PTC Creo Elements/Direct Drafting ( ME10 )

Macro Programme

Durch die Macroprogrammierung im Drafting kann dieses 2D CAD Programm sehr leistungsfähig werden.

Beispiel 1: Konvertieren in DWG/DXF mit BMG Layer

Creo Elements/Direct Drafting ME10
Im Drafting wird zur Strukturierung der Zeichnung normalerweise die Teilestruktur gewählt. Bei diesem Kunden war die Anforderung, dass die Zeichnungselemente mit dem BMG (Betriebs Mittel Grafik) Layer- und Datenkonzept kompatibel sind und entsprechend im Autocad weiterbearbeitet werden können sollen. Mit Hilfe von Macros wurden eindeutige Elemente automatisch und die anderen halbautomatisch auf die entsprechenden Layer gelegt.  

Beispiel 2: Hotspot Datenfile erstellen

CoCreate Drafting
Für einen Online Ersatzteilkatalog soll eine PNG-Datei der Zeichnung erstellt werden. Die Positionsnummern auf der Zeichnung sollen mit Wert und Koordinaten des Beschriftungsfelds in einer zugehörigen Datei gespeichert werden. Der Programmablauf erfolgt vollautomatisch, sowohl für Bestandsdaten (im Batchbetrieb) als auch im laufenden Betrieb, während dem Speicherprozess in die Datenbank.

Beispiel 3: Stückliste für P2plus erstellen

OneSpace Drafting
Aus der Strukturliste soll eine Stückliste für das ERP- Programm P2plus erstellt werden.

Beispiel 4: Automatisches erstellen einer Montagezeichnung

OneSpace Drafting
Vollautomatisches erstellen einer Montagezeichnung. Es sollen nur der Typ und die Höhen- und Breitenparameter des Produkts eingegeben werden. Die Zeichnungserstellung, mit Befestigungsbohrungen erfolgt auf Knopfdruck in wenigen Sekunden.